Casa Cielo Terra in vendita a Castel di Lama
Castel di Lama
Zona: Castel di Lama Basso - VIA DELLA STAZIONE
€ 70.000
#112 mq
#2
#1
Vedi più foto
Cod. 2438
€ 70.000
Classe energetica: VA - In Fase Di Valutazione
Nuovo

Casa Cielo Terra in vendita a Castel di Lama

Castel di Lama Basso - VIA DELLA STAZIONE
# 112 mq
# 1 Bagni
# 2 Camere
Descrizione

Casa Cielo Terra da ristrutturare a Castel di Lama, corte privata, giardino e fondaco-Rif: 2438

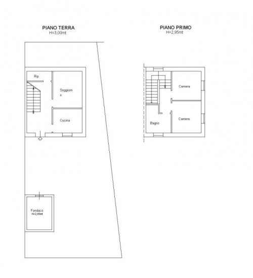
Disposta su due livelli per complessivi 88 mq circa fuori terra , 133 mq circa di corte esterna privata, 14 mq circa di fondaco;

La proprieta' risulta così suddivisa:

Piano terra di 44 mq circa composto da: ingresso su disimpegno, cucina abitabile, soggiorno e ripostiglio;

Primo piano delle dimensioni interne di 44 mq circa composto da: disimpegno, una camera matrimoniale, una camera doppia, un bagno finestrato;

Completa la proprieta' una corte esterna di 133 mq circa e un fondaco di 14 mq circa;

L'unità necessita di ristrutturazione interna/esterna;

Ottima soluzione per chi cerca una soluzione abitativa indipendente, vicina a tutti i servizi;

Per ulteriori informazioni e per eventuali visite potete contattare il numero 0735.060012, siamo disponibili presso i nostri uffici siti a San Benedetto del Tronto in via L. Bianchi, 18

  • Casa Cielo Terra in vendita a Castel di Lama
  • Casa Cielo Terra in vendita a Castel di Lama
  • Casa Cielo Terra in vendita a Castel di Lama
  • Casa Cielo Terra in vendita a Castel di Lama
  • Casa Cielo Terra in vendita a Castel di Lama
  • Casa Cielo Terra in vendita a Castel di Lama
  • Casa Cielo Terra in vendita a Castel di Lama
  • Casa Cielo Terra in vendita a Castel di Lama
  • Casa Cielo Terra in vendita a Castel di Lama
  • Casa Cielo Terra in vendita a Castel di Lama
  • Casa Cielo Terra in vendita a Castel di Lama
  • Casa Cielo Terra in vendita a Castel di Lama
mostra di piùmostra di meno
Caratteristiche
Scopri le caratteristiche di questo immobile
Nelle vicinanze
Servizi e infrastrutture della zona
Ubicazione immobile
Contattaci

Alcuni immobili che potrebbero interessarti
Casa Cielo Terra in vendita a Castel di Lama
Novità
Castel di Lama
Piattoni
€ 139.000
Casa Cielo Terra in vendita a Castel di Lama
Cod. 2345
Casa cielo terra con corte esclusiva a Castel di Lama zona Chiarini. RIF. 2345La proprieta' con ingresso indipendente è libera sui...
Dettagli
Casa Cielo Terra in vendita a Cossignano
Cossignano
€ 120.000
Casa Cielo Terra in vendita a Cossignano
Cod. 2347
Agile Immobiliare propone Casa di Campagna per complessivi 250 mq circa immerso nel verde e nella quiete nel comune di Cossignano -...
Dettagli
Casa Cielo Terra in vendita a Offida
Novità
Offida
€ 360.000
Casa Cielo Terra in vendita a Offida
Cod. 2905
CASA CIELO TERRA NEL CENTRO STORICO DI OFFIDA - NS RIF 2905Ad Offida, a due passi dal caratteristico e rinomato centro storico, proponiamo...
Dettagli
Casa Cielo Terra in vendita a Monteprandone
Novità
Monteprandone
Collinare
€ 98.000
Casa Cielo Terra in vendita a Monteprandone
Cod. 2882
Casa cielo terra nel centro storico di Monteprandone con ampie metrature e terrazzo panoramico. RIF: 2882L'unita' immobiliare di 300...
Dettagli
Ultimo aggiornamento 30/11/2023
×
Codice
Contratto
Scegli dove cercare
Tipologia - multiscelta
Prezzo


Totale mq


Locali minimi
Bagni minimi
Camere minime
Altre opzioni - multiscelta