- Ti trovi in:
- Home ›
- Immobili ›
- Grottammare ›
- Vendita ›
- Villetta a schiera ›
- Villetta a schiera in vendita a Grottammare
Villetta a schiera in vendita a Grottammare
sopra la Statale 16 - via bologna
Descrizione
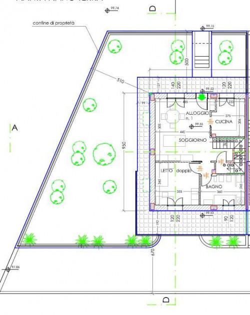
Villetta a schiera di testa in Vendita a Grottammare prima collina - Rif. 2311
L'unità con esposizione EST/SUD/OVEST è cosi composta:
- Piano terra di circa 70,00 mq composto da ingresso su ampia zona giorno, bagno con box doccia oltre a terrazzo panoramico vista mare e giardino per complessivi 240,00 mq
- Piano primo di circa 70,00 mq composto da due camere da letto matrimoniale, una camera da letto doppia, un bagno con ampio box doccia, balconi semi abitabili per complessivi 25,00 mq
- Piano seminterrato di circa 80,00 mq composto da fondaco, un bagno e un locale lavanderia, oltre a un box doccia doppio con due serrande motorizzate per accesso.
L'immobile costruito nel 2016 presenta delle ottime finiture e delle dotazioni impiantistiche tali da permettere un notevole risparmio energetico quali: impianto di riscaldamento e raffrescamento a pavimento con pompa di calore alimentata anche da pannelli fotovoltaici , ricambio d'aria, deumidificazione canalizzata, predisposizione impianto di allarme, impianto di aspirazione centralizzato, tende esterne elettriche, serrande garage motorizzate, impianto di irrigazione, infissi di alluminio a taglio termico con vetrocamera corredati da persiane in alluminio.
Ottima soluzione per un nucleo famigliare che cerca l'indipendenza ma senza rinunciare alla vicinanza di tutti i servizi.
Per ulteriori informazioni e per eventuali visite con il nostro agente di riferimento, siamo disponibili presso i nostri uffici siti a San Benedetto del Tronto , in via Bianchi 18 o potete contattarci al numero 0735/060012
Caratteristiche
Scopri le caratteristiche di questo immobile
Codice: 2311
Contratto: Vendita
Categoria: Villetta a schiera
Indirizzo: via bologna
Comune: Grottammare
Zona: sopra la Statale 16
Totale mq: 240 mq
Camere: 3
Bagni: 3
Locali: 6
Stato conservazione: Ottimo
Riscaldamento: Autonomo
Infissi: alluminio
Termosifoni: pavimento
Anno di costruzione: 2016
Stato attuale: Libero al rogito
Esposizione: est/sud/ovest
Distanza mare/lago: 600 mt.
Terrazza: 200 ㎡
Tv SAT: Autonoma
Ripostiglio
Copertura ADSL
Copertura Fastweb
Aria Condizionata
Impianto Telefonico
Impianto Elettrico: A norma
Sanitari sospesi
Doccia
Infissi in alluminio
Predisposizione allarme
Cassetta di sicurezza
Persiane
Nelle vicinanze
Servizi e infrastrutture della zona
Planimetrie
Ubicazione immobile
Contattaci

Alcuni immobili che potrebbero interessarti
Folignano
Piane di Morro
€ 279.000
Villetta a schiera in vendita a Folignano
Cod. 2695
Signorile villetta a schiera di testa a Piane di Morro, nel comune di Folignano Ascoli Piceno, zona collinare con: quattro camere da...
Dettagli
Ascoli Piceno
Marino del Tronto
€ 370.000
Villetta a schiera in vendita a Ascoli Piceno
Cod. 2879
Villetta a schiera in zona residenziale in Vendita a Maltignano (AP) - Rif. 2870L'immobile dispone di due ingressi indipendenti, corte...
Dettagli
Castel di Lama
Castel di Lama Basso
€ 300.000
Villetta a schiera in vendita a Castel di Lama
Cod. 3046
Signorile villetta a schiera di testa con ingresso indipendente a Castel di Lama, sopra la salaria, corte pavimentata, giardino, tre...
Dettagli
Novità
Ascoli Piceno
Valli
Tratt. riservata
Villetta a schiera in vendita a Ascoli Piceno
Cod. 2370
Villetta a schiera in Vendita a Valli di Lisciano frazione di Ascoli Piceno - Rif. 2370 L'immobile di recente costruzione, con corte...
Dettagli
Ultimo aggiornamento 21/07/2022